目录
一、脉冲布袋除尘器的技术定义
二、气固分离机理与过滤过程解析
三、系统结构组成及功能说明
四、关键设计参数计算方法
五、不同工况下的设计策略调整
六、运行阻力变化规律与控制逻辑
七、常见故障机理分析
八、系统优化方向
九、总结
一、脉冲布袋除尘器的技术定义



脉冲布袋除尘器是一种利用纤维滤料进行气固分离的高效干式过滤设备。其核心功能是通过滤袋形成的过滤层,将含尘气体中的颗粒物截留在滤料表面,从而实现粉尘与气体的分离。
与机械除尘设备不同,布袋除尘器的过滤精度可达到亚微米级,其分离效率通常可达到99%以上,特别适用于中细颗粒粉尘治理场景。
该设备广泛应用于:
矿山破碎筛分
水泥生产
煤炭洗选
金属冶炼
锅炉烟气净化
二、气固分离机理与过滤过程解析
布袋除尘器的分离过程并非单一物理机制,而是多种机理叠加结果。
1. 初始过滤阶段
在运行初期,粉尘主要依靠以下机制被捕集:
惯性碰撞:大颗粒因惯性偏离气流方向撞击纤维
拦截作用:颗粒沿气流运动时被纤维截留
扩散作用:细颗粒受布朗运动影响与纤维接触
2. 粉尘层形成阶段
随着运行时间增加,滤袋表面形成“粉尘层”。此时真正起主要过滤作用的不是滤料本身,而是粉尘层。
该阶段的特点:
过滤效率提高
系统阻力逐步上升
因此,布袋除尘器本质上是“滤料+粉尘层”共同工作的系统。
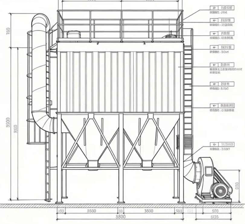
三、系统结构组成及功能说明
典型脉冲布袋除尘系统包括:
进风系统
过滤室
净气室
脉冲清灰系统
灰斗排灰系统
控制系统
其中清灰系统是核心部分。
脉冲喷吹过程:
控制系统发出信号
电磁阀开启
脉冲阀瞬间释放压缩空气
滤袋快速膨胀
粉尘脱落
喷吹持续时间通常为0.1秒左右。
四、关键设计参数计算方法
1. 过滤风速
公式:
过滤风速 = 处理风量 ÷ 总过滤面积
例如:
处理风量:36000 m³/h
过滤面积:800㎡
则:
36000 ÷ 800 ÷ 60 = 0.75 m/min
不同工况推荐值:
常规干燥粉尘:1.0–1.3 m/min
高湿粉尘:0.8–1.0 m/min
高浓度粉尘:≤1.0 m/min
过滤风速直接决定设备尺寸与运行稳定性。
2. 设备阻力
系统总阻力包括:
滤料阻力
粉尘层阻力
结构阻力
正常运行阻力范围:
800–1500 Pa
若阻力长期高于1800 Pa,需检查清灰系统。
3. 脉冲压力
常用喷吹压力:
0.4–0.6 MPa
压力过低清灰不彻底,过高会损伤滤袋。
五、不同工况下的设计策略调整
1. 高湿度工况
风险:
糊袋
冷凝
阻力突升
对策:
降低过滤风速
增加保温层
控制入口温度高于露点
2. 高浓度粉尘
特点:
初始负荷高
粉尘沉积速度快
建议:
设置旋风预处理
合理分仓设计
3. 易燃易爆粉尘
必须考虑:
防静电滤料
泄爆装置
接地措施
六、运行阻力变化规律与控制逻辑
阻力变化通常呈现三阶段:
启动阶段:阻力较低
稳定阶段:压差波动平衡
异常阶段:压差持续升高
目前主流控制方式为:
压差控制清灰
优点:
自动适应粉尘浓度变化
减少过度清灰
河北初心环保在工程设计中通常采用压差闭环控制方式,提高系统长期稳定性。
七、常见故障机理分析
1. 糊袋
原因:
高湿
含油粉尘
低温冷凝
2. 排放超标
可能原因:
滤袋破损
密封不严
风速过高
3. 清灰失效
原因:
脉冲阀故障
气源含水
控制逻辑异常
八、系统优化方向
合理降低过滤风速
增加分室结构
优化进风均布设计
设置在线监测系统
提高气源质量
布袋除尘系统的稳定性不取决于单一参数,而是设计、施工与运行管理的综合结果。
九、总结
脉冲布袋除尘器的核心在于:
过滤风速匹配
清灰系统可靠
工况分析准确
设计阶段若忽略粉尘特性与运行环境,后期容易出现阻力异常、滤袋损坏等问题。
在环保设备行业逐渐趋向精细化的背景下,系统化设计思维比单纯设备堆叠更为重要。
本文链接:http://www.shouchenqi.com/?id=205 转载注明出处!